The homeowners approached after I spoke at a Design Seminar in conjunction with Dwell Magazine. After a private meeting with site data, we outlined a program, diagrammed a layout and set a budget. As the design progressed we then collaborated with Dwell Magazine and Res4A to finalize the design and cabinet details while KINDO continued to manage the specifications, builder and budget.
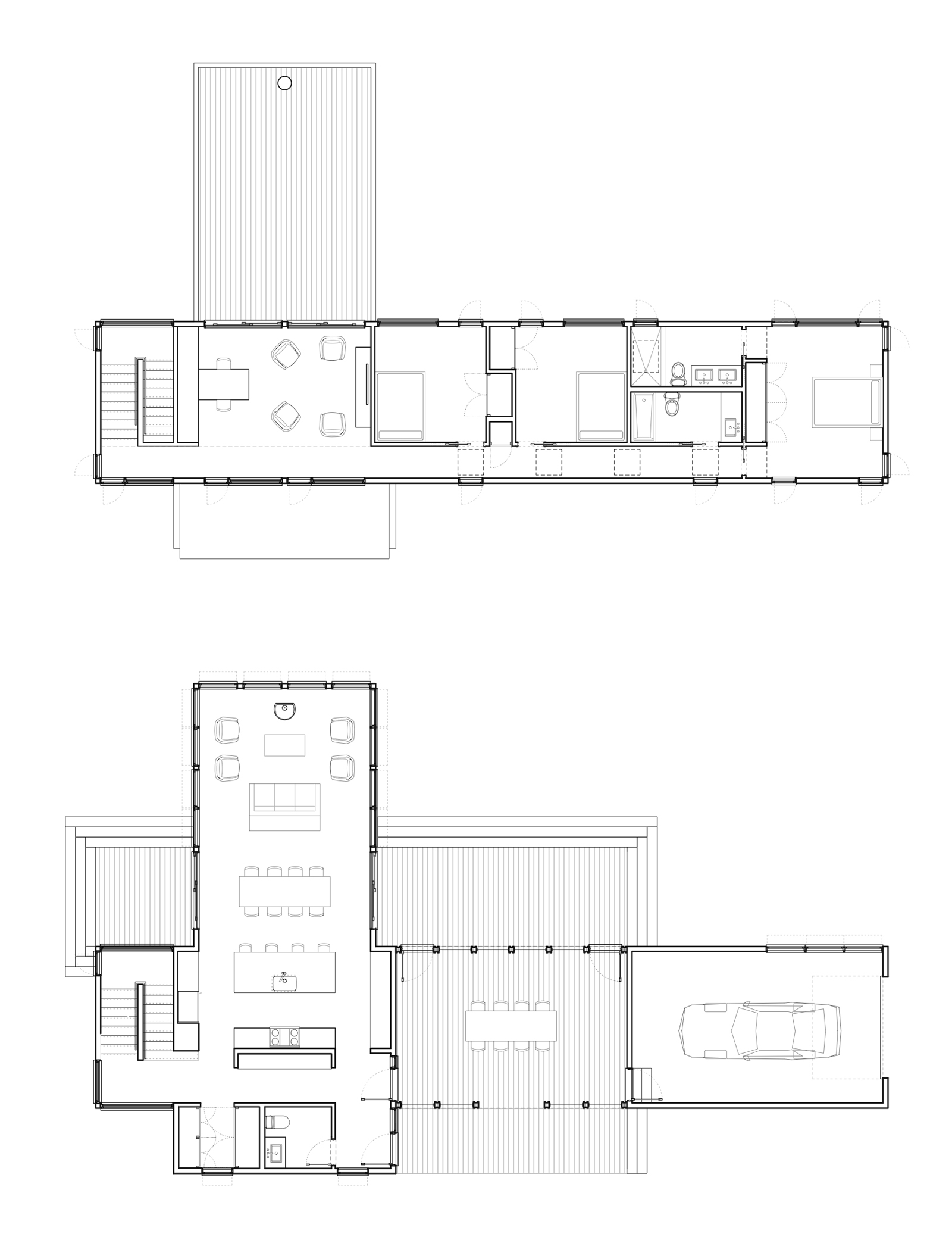
The 2850 sf home design was completed and then panelized and prefabricated and shipped to the site for assembly. This process allowed for higher construction tolerances in controlled environments, efficiency in labor and minimal material excess, and faster on-site construction times.
